To Let £1,000pcm
Lyric Building, King Street, Carmarthen, Carmarthenshire, SA31 1BD

Description


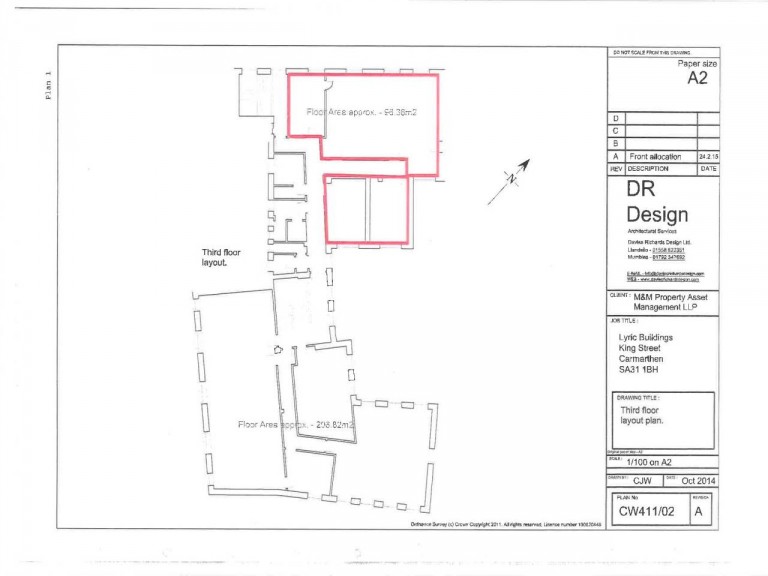
Office premises measuring approximately 300 sqft to 6,750 sqft (30 sqm to 620 sqm) located in the Lyric buildings on the corner of King & Queen Street, Carmarthen, which is home to Co Op, Lloyds Bank, Natwest, many independent boutique shops and high-quality bars and restaurants. The property is conveniently in walking distance to St Peters Car Park and adjoins the Lyric Theatre. The property provides office accommodation in a town centre location. The offices benefit from carpeted floors, fluorescent light fittings, dado trunking, kitchen/staff room and WC Facilities. ***Price on application***

Reference: 5294

Date Available: Available Now

More Details

Location

The property is located on King Street in Carmarthen which is home to Co Op, Lloyds Bank, Natwest, many independent boutique shops and high-quality bars and restaurants. The property is conveniently in walking distance to St Peters Car Park and adjoins the Lyric Theatre. Carmarthen is the county town administrative centre of Carmarthenshire in south west Wales. The town is located approximately 87 km (54 miles) west of Cardiff, 48 km (30 miles) west of Swansea. Carmarthenshire has a resident population of approximately 185,000 with approximately 15,000 living in Carmarthen. The town benefits from an excellent catchment in excess of 250,000 people within a 40 minute drive. Carmarthen benefits from good transport links being located on the intersection of the A40 and A48 dual carriageway. The A48 provides direct access to the M4 motorway approximately 25 km (16 miles) to the south east, providing access to Swansea, Cardiff and the national motorway network.

Accommodation

The property provides approximately 300 sqft to 6,750 sqft (30 sqm to 620 sqm) of office accommodation.

Lease terms

The property is available by way of a new internal repairing and insuring lease for a term of years to be agreed.

Use

The property benefits from office use. There is potential for alternative uses subject to planning consent.

Service charge

Service charge applies to include heating, water, cleaning, communal power, maintenance of fire alarms and lift system and general maintenance and upkeep of the building. Please enquire for further details and charges.

Business rates

Interested parties should rely on their own enquiries with the Local Authority.

Services

Communal gas fired central heating, communal WC and Kitchen facilities with water and drainage connected. Electricity and telephone/broadband connection available in office.

Legal costs

Each party to bear their own legal and professional costs incurred.

Viewing

Strictly by appointment through Swift Property Services Lydia Crane (lydia@swiftpropertyservices.co.uk) / Ben Hutchison (ben@swiftpropertyservices.co.uk)

Please note

These property details in no way constitute an offer of contract. Floor plans, virtual tours and measurements are approximate and buyers should satisfy themselves on all aspects of size, layout, condition, access and planning matters. No services or appliances have been tested by Swift Sales & Commercials and it would be the responsibility of the purchaser to do so. Photographs may have been taken with a camera using a wide angle lens. Photographs may depict items which are not included in the sale of the property. Swift Property Services is the trading name of Swift Sales & Commercials Ltd - Company reg: 7238246

For further details on this property please give our office a call
01267 231 394

Apply for Property